こんなこと考えている方に!
フルリフォーム・快適住まい創りの家
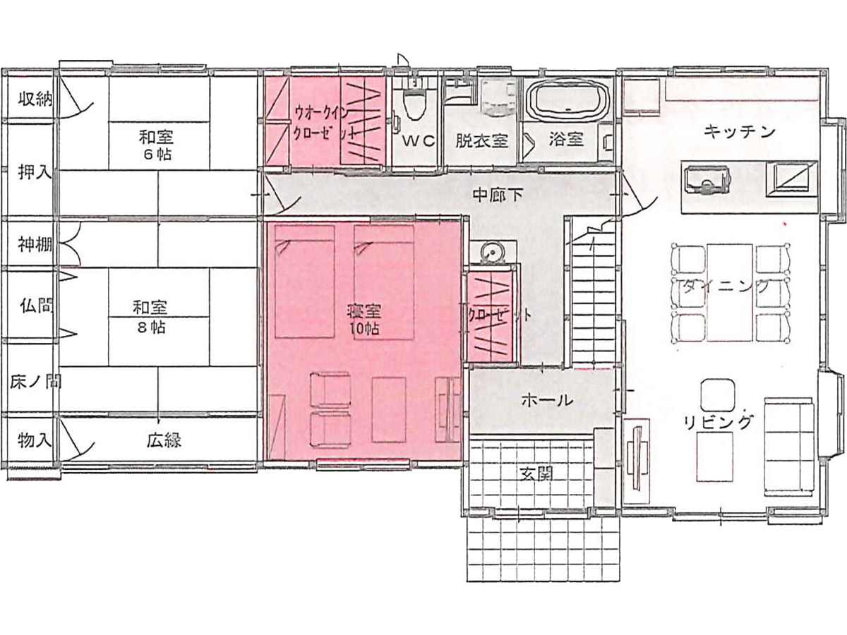
築40年の親から譲り受けた住居を60代夫婦が1階部分で一生涯を生活できる快適な住まいにリフォーム

フルリフォーム・快適住まい創りの家
築40年の親から譲り受けた住居を60代夫婦が1階部分で一生涯を生活できる快適な住まいにリフォーム
After
御家族の感想
窓もペアガラスなり、外の音も静かになり、断熱材を強化したことで室内の温度も冷めにくく、夏の冷房費・冬の暖房費が昨年より少なくなり快適になりました。
耐震診断・断熱
地震に強く、冬暖かい家づくりを
家族の安全を守るためには、地震対策と快適な住環境の両立が重要です。オカダ建設では、建物の耐震診断を行い、必要に応じた補強工事をご提案します。また、断熱性能を向上させるリフォームで、一年を通して快適で省エネな暮らしを実現。将来の地震リスクやエネルギーコストの不安を解消し、安心と快適を兼ね備えた住まいを提供いたします。

老後に後悔しないリフォーム
今の快適さ、未来の安心を
ライフステージの変化に合わせたリフォームで、これからの生活に備えましょう。将来のバリアフリー化や省エネ対策、高齢者にも優しい住まいへの改修など、幅広いニーズにお応えします。オカダ建設では、住まいの現状とご家族の将来を見据えたプランニングで、暮らしの質を高め、長く安心して住める家づくりをお手伝いします。

キッチン・リビングリフォーム
家族が集う空間を、もっと快適に
毎日使う水回りの空間は、清潔さと快適性が求められます。オカダ建設では、多機能な設備を紹介し、使い勝手が良く掃除が簡単な設計をご提案します。ご家族のライフスタイルに合わせた水回りリフォームで、生活の質を向上させましょう。近年、キッチンのリフォームの理由としては、1位「設備や機器の老朽化」2位「使い勝手の改善」3位「老後への備え」というのが多く考えられています。また、コンロの火を消し忘れの不安からIHにかえるという提案もさせていただいています。

浴室・洗面室・トイレリフォーム
水回りをもっと快適で清潔に
毎日使う水回りの空間は、清潔さと快適性が求められます。オカダ建設では、最新の機能の説明を行い、尚、洗面室やトイレには収納性やデザイン性をプラスします。見た目の美しさはもちろん、快適さ・安全性・経済性が大きく向上し、毎日の暮らしがより豊かになります。断熱性が高い浴室や暖房機能を導入することで、冬場の温度差を軽減し、健康リスクを抑えることができます。さらに防カビ防汚加工された壁や床を使うことで、毎日の掃除が楽になります。

屋根・外壁リフォーム
住まいを守る、外装リフォーム
屋根や外壁は、住まいを外部環境から守る重要な部分です。雨漏りやひび割れ、塗装の劣化を放置すると、家全体の寿命に影響します。オカダ建設では、耐久性と美観を兼ね備えた材料や工法で、長期的に安心できる外装リフォームを提供します。見た目も機能も新しく生まれ変わった住まいで、快適な毎日をお過ごしください。

-
A邸 土葺き瓦をガルバリウム鋼板に葺替え
-
A邸 施工中
-
I邸 窓取替え・外壁貼替えリフォーム
-
S邸 外壁塗装 塗替えリフォーム
-
D邸 屋根遮熱塗装 塗替え
-
D邸 外壁塗装 塗替え
-
A邸 外壁修繕リフォーム
-
N邸 モルタル塗り壁を化粧サイディングへリフォーム
-
Y邸 外壁 木製板からガルバリウム鋼板貼り
-
T邸 外壁 木製板からガルバリウム鋼板貼り
外構リフォーム
住まい全体の安全性を向上
家の構造部分だけでなく、外構も耐震性を考慮することで、住まい全体の安全性を高めることができます。フェンスやカーポート、門扉などの外構部分も地震に備えた設計をご提案します。災害時のリスクを減らすだけでなく、デザイン性も重視したプランニングで、安心感と美しさを兼ね備えた住環境を実現します。

-
N邸 樹木撤去後、手入れが少ないフェンスにリフォーム
-
O邸 地震対策としてフェンスに取替えリフォーム
-
O邸 ブロック塀をアルミフェンスにリフォーム
-
S邸 庭を駐車場へリフォーム
-
I邸 ガレージの建替え
-
I邸 門柱のリフォーム
その他修理など
小さな困りごとも迅速に対応
水漏れやドアの不具合、壁のひび割れなど、住まいの小さなトラブルにも迅速に対応します。オカダ建設では、どんな修理にも丁寧に取り組み、お客様が安心して住み続けられる環境をサポートします。「こんなこと相談しても大丈夫かな?」というようなお悩みもお気軽にご連絡ください。住まいの困りごとを解決し、快適な暮らしをお届けします。




























































・新築か、建て替えか検討したい方
・光熱費を抑えた住居にしたい方
・冬の寒さ、夏の暑さに対応できる断熱材にしたい方
・水廻りのリフォームを検討したい方
・耐震性を強化したリフォームを考えたい方
・外壁、屋根をメンテナンスの少ない物への修繕したい方
・樹木を減らし駐車場などへのリフォームしたい方
あなた様のこれからの生活空間をより安全に快適な住居となるよう、要望を叶えるリフォームを行ってまいります。